56 Littlebrooks Lane – Shepton Mallet

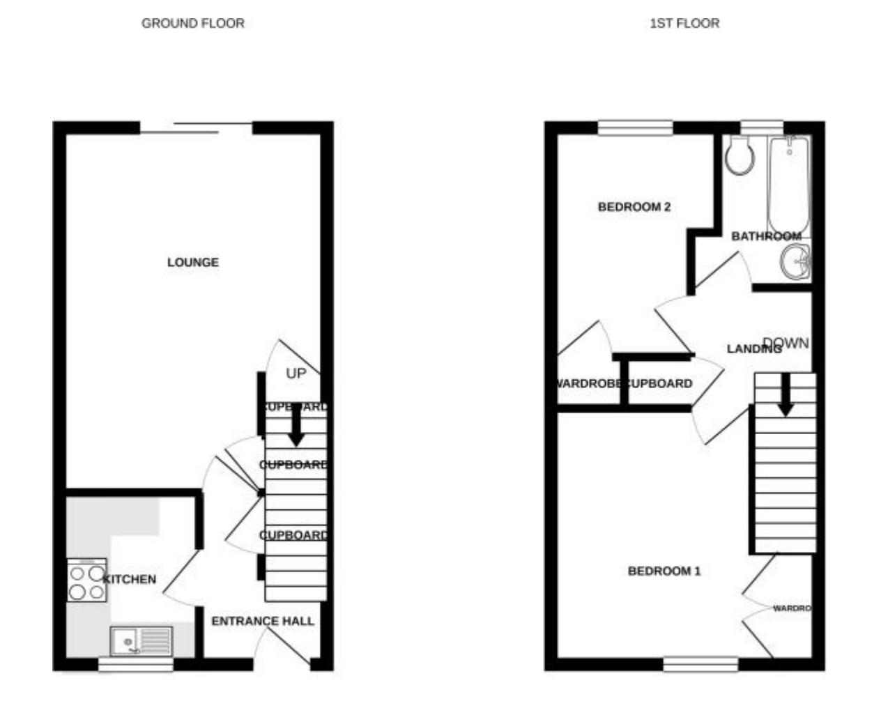
A well-presented mid terraced two-bedroom house located on the quiet and popular Littlebrooks Lane in Shepton Mallet is available for long term let. Offering comfortable living in a convenient residential setting. The accommodation comprises a bright living room, a fitted kitchen with space for dining. Upstairs are two well-proportioned bedrooms, both benefiting from good natural light and a modern bathroom. Outside, the property features a private rear garden, ideal for low-maintenance outdoor space. Situated within easy reach of Shepton Mallet town centre, the property is close to local shops, schools, and transport links, making it ideal for professional tenants, couples, or a small family.

